Mt Maunganui
3
2
N/A
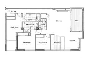
141sqm
N/Asqm
Mt Maunganui
Auction
Thursday 18th November - 1pm
Harcourts Auction Rooms, 303 Cameron Road, Tauranga
proudly marketed by
Advantage Realty Ltd MREINZ
Receivership Sell-Down
Receivership Sell-Down * Receivers instructions are clear, this apartment must be sold! * 3 bedroom, 2 bathroom apartment plus 2 secure carparks * 141m² floor area with 13m2 deck * Stunning sea views situated on the second level * The Vivaldi complex is located on the stunning stretch of Marine Parade * Quality new apartment - complex includes heated pool and spa * Act now and take possession before the summer holidays
Question
Please leave this field blank:
Upload by Kym Raubenheimer
Tauranga - Mount Maunganui